The Staircase That Never Was
This blog is written by Evohome, a small design-build company based in the northern part of Japan, Hokkaido — where winters are long, snow is deep, and homes must truly protect and comfort the people who live in them. We create houses that reflect the warmth, honesty, and quiet beauty of life in the North.

Completed in 2016, now 9 years old.
While watching Sho-yan the carpenter building stairs on YouTube, I caught myself thinking, “He’s a great craftsman, but… the stair design could be better.” That video reminded me of this one-story house (and made me smile).
I first met the owners at a kitchen showroom where I was exhibiting a handmade custom kitchen I had built. The event wasn’t about selling new houses — it was a small experiment to take kitchen-only orders. But nobody showed up. The weather was terrible, and my mood was worse. Just as I was about to pack up, a woman approached me and said, “Excuse me, may I ask something?” I thought she wanted a kitchen, but instead, she said she wanted to build a house — with us.
At the time, we already had enough projects, so I wasn’t exactly eager. Still, I decided to listen. It turned out she had almost decided on another builder, so I talked with her fully expecting to decline. But in the end, her passion to build with Evohome won me over. During our planning meeting, I asked, “Why do you want Evohome?” and she immediately answered, “Because I really want that beautiful iron staircase!”
So I put my heart into the design… but what we ended up building was a single-story house (laughs). The clients loved it, but until the very end they kept saying, “We don’t need a second floor, but can’t you at least build the staircase?” I still remember that conversation vividly.
True custom homes aren’t built by simply following what clients say. They are created by understanding how people live, what they value, and then proposing a lifestyle that feels real — a home that reflects authenticity and joy.

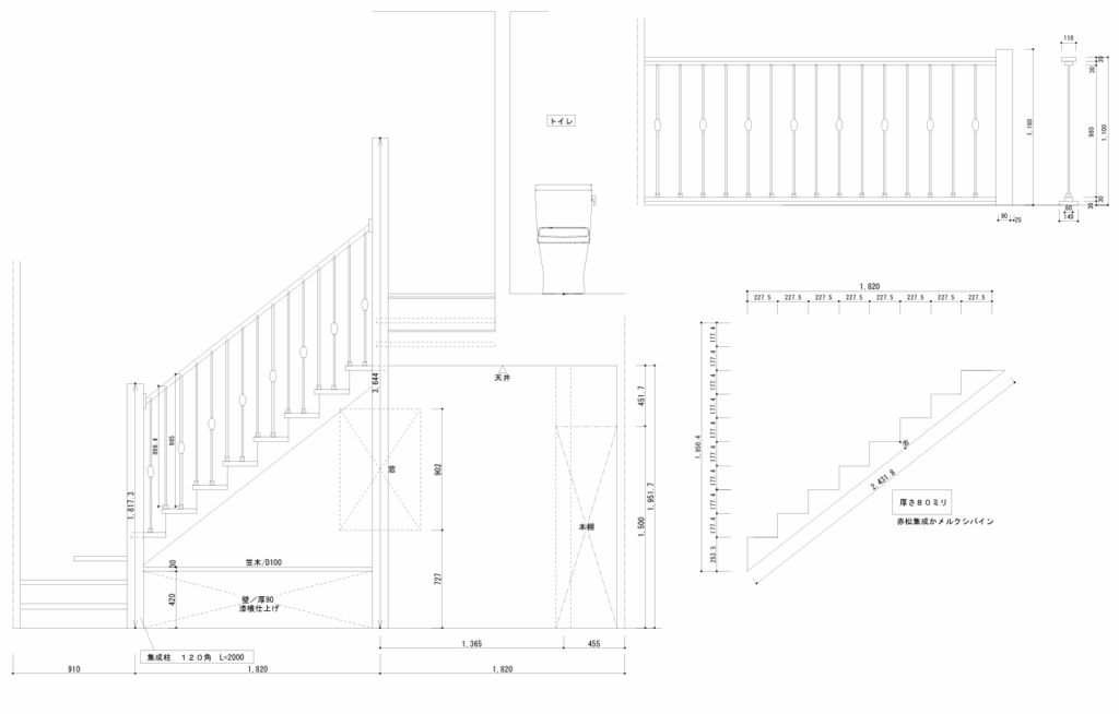
So here’s one of our past projects — a lovely Evo staircase with charming iron handrails.

The drawings were made by me, who has spent decades mastering the art of stairs. Then our Evo carpenters brought them to life.

And here’s the finished result. Beautiful, isn’t it?
It takes both skilled hands and precise design to achieve this harmony.




By the way, most builders today just order “prefabricated stair sets” through quick-order systems from big manufacturers like LIXIL. They simply assemble the parts on-site. That’s why you rarely see handcrafted stairs like these anymore.
So, please don’t ask for stairs like this — they’ll get embarrassed and say, “We can’t make that,” or come up with excuses like, “It’s better not to.” (laughs)









